
ein Holzaus fur 4 Personen mieten
mit der Familie oder zwischen Freuden Das Holzaus, eine einfache Unterkunft, bietet den Komfort und die Anziechung eines Ferenhauses.
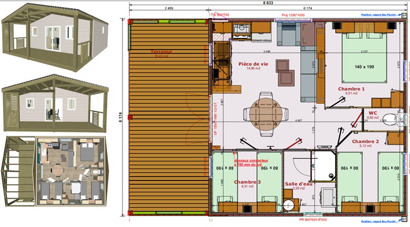
Sie haben einen angenehmen Raum, komfortable Betten, eine augestattete Kochniche, ein Badezimmer mit WC und eine uberdachte Terrasse zur Verfugung, um im Freienlhr Urlaud zu genießen
Wahrend eines Wochenendes oder einer Woch (außer der Hauptsaison) niederlassen Sie sich im Schatten von Pinienwald
- 1 Wohnzimmer
- 1 Kuche (kulschrank, Ceran Kochplatte, Mikrowelle, Senseo Kaffeemaschine, Geschirr)
- 1 Schlafzimmer mit Doppelbett 140cm
- 1 Schlafzimmer mit 2 Einzelbett 80cm
- 1 Schlafzimmer mit 2 Einzelbett 80cm
- Badezimmer und WC
- Fernschen Daunendecken und Kissen, Klimaanlage
- Uberdachte Terrasse mit Gartenmobein




